Chatbot Icon
Selling

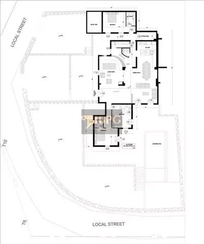
for sale House in Ftelia East Macedonia And Thrace 475m2

QR Code

1,700,000€

Id:5940921

  • (0)
  • 45 Views
  • Ftelia, East Macedonia And Thrace

Description
For sale 3-storey villa of 475 sq.meters in Cyclades. The semi-basement consists of 2 bedrooms, living room, one kitchen, 2 bathrooms, one shower WC. The ground floor consists of 3 bedrooms, 2 living
Overview
Property ID: 5940921
Reference Id 3411304
Type: House
Bathrooms: 2
Square: 475 m²
Construction Year: 2000
Amenities and features
  • Swimming pool
What’s nearby?

Explore nearby amenities to precisely locate your property and identify surrounding conveniences, providing a comprehensive overview of the living environment and the property's convenience.

  • Beach: 1km
Location
Write A Review
Reviews
0 out of 5
Contact Agency
Featured properties

The Most Recent Estate